Function

UEL (Thailand) Co.,Ltd.

CADmeister-LITE for MOLD


This tool supports users to convey and confirm CAD attribute data mainly of 3D models.

It has not only the basic capabilities such as of measurement, but also the capability of confirming CAD attribute data such as design information and CAM information (under development).

CADmeister-LITE enables easy understandings of shapes and intentions of designs and machining during the 3D model phases such as of design, CAM and machining.

Eventually, this tool enables a reduction of costs and errors.

 

Features
  • Capabilities of Measurement and Assessment

Measurement

Distances among figures consisting of points, lines/curves and surfaces can be measured on the basis of coordinate values. Also, diameters and angles formed by lines and surfaces can be measured.

Furthermore, gaps and interferences among the figures can be checked and the results can be output in a file.

Assessment

A variety of capabilities for checking waviness or warpage of surfaces are provided such as: the function of displaying curvature, Parameter Lines and contours; and the assessment function of detecting undercuts and displaying sections.

 

  • Capabilities of Data Exchange

CADmeister data can be input as they are. Also, CADCEUS data (cfio) can be input. Furthermore, it is possible to input IGES/JAMA, DXF, TDEX, and STL data in the standard formats.

 

  • Capabilities of Drawing Creation

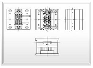
It is possible to create drawings of 6 perspectives, arrow views, drawings of elements on a large scale, and drawings of cross sections (full sectional views and views of step-formed sections) on the basis of the constituent parts of 3D mold model.

Drawings Viewed from 6 Perspectives

  • Plan
  • Front view
  • Right-side view
  • Left-side view
  • Bottom view
  • Top view

 

  • Capabilities of Drafting

Dimensions and annotations can be entered through the use of a variety of functions about vertical and horizontal, parallel, radius, diameter, and angle.

Auxiliary functions about center line, virtual intersection point, and hatching support the input of dimensions.

 

  • Capabilities of White Board

Simple annotations and figures can be written and saved on the CAD screen. Also, the data and figures written on the CAD screen can be altogether output as image data.

 

  • Capabilities of Displaying CAD Attribute Data

Part attributes, machining attributes, and tolerance attributes can be set for groups of parts that comprise a mold. Shape elements and CAD attribute data of a palette window are mutually linked, and thus can be easily confirmed by displaying alternately.


Share this